k8·凯发(中国)天生赢家·一触即发

专用仪表 隔爆型热电偶、热电阻 耐磨热电偶/热电阻 防腐热电偶/热电阻 双金属温度计 WSSX工业双金属温度计(一体化型无固定装置) WSSX工业双金属温度计(一体化型法兰式) WSSX工业双金属温度计(一体化型螺纹式) 温度仪表 铠装热电偶/热电阻 金属管状电加热器 便携式微机钢水测温仪 PT100温度传感器20 新闻中心 科学新知 凯发k8国际首页登录 联系我们 k8·凯发(中国)天生赢家·一触即发 实验范例 公司介绍

双金属温度计

点击查看相册

WSSX工业双金属温度计(一体化型法兰式)

WSS型系列工业双金属温度计是一种适合测量中、低温 的现场检测工业仪表。可直接测量气体、液体的温度,广泛应 用于石油、化 ...

产品详情

WSS型系列工业双金属温度计是一种适合测量中、低温 的现场检测工业仪表。可直接测量气体、液体的温度,广泛应 用于石油、化工、船舶、机械、医药、电力等行业,凯发k8国际首页登录是玻璃 温度计的替代产品。
我公司生产的WSS工业双金属温度计,产品规格品种齐 全,包括普通双金属温度计,电接点式、可调角型、一体化,全 不锈钢防腐型双金属温度计,以及有特殊安装方式、特殊型号和 特殊防腐要求的产品,凯发k8国际首页登录并可配套生产外保护管,保证质量. 供货及时。

WSSX工业双金属温度计(一体化型法兰式)_http://www.bjjinhuiteng.com_双金属温度计_第1张

工作原理

双金属温度计的感温元件由绕制成螺旋状的双金属片构成。双金属片受热膨胀,由于双金属片主动层和被动层的膨胀 系数不同,而产生扭转,使热能转变为机械能,带动指针旋转,实现显示被测介质温度的目的。

WSSX工业双金属温度计(一体化型法兰式)选型对照表

WSSX工业双金属温度计(一体化型法兰式)_http://www.bjjinhuiteng.com_双金属温度计_第2张

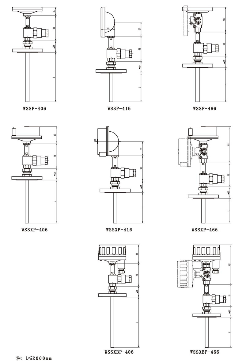
结构示意图

WSSX工业双金属温度计(一体化型法兰式)_http://www.bjjinhuiteng.com_双金属温度计_第3张